
|
||||||||
|
|
|
||||||
|

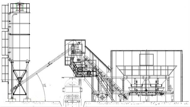
Each portable concrete plant manufactured by Haomei adopts high quality material and well known brands spare parts. Haomei has ranked to the leading manufacturer of portable concrete plant because it is highly durable under various conditions and its customized design makes its price worthwhile.